Особенности: плюсы и минусы
Электропечь для бани не требует сложного обслуживания, как дровяной вариант. Электрический ток многократно дороже дров, смонтировать устройство без профессионального электрика не получится. Если приглашать специалиста, он может указать, что проводка не справится с поставленной задачей или электроснабжение в конкретном месте недостаточно мощное и надежное. Помимо этого трудность заключается в обязательном заземлении конструкции, часть необходимых работ полагается делать в процессе строительства.


Тем, кто не сразу определился с типом печи или решил использовать электрический нагрев через какое-то время, придется делать дорогостоящий и трудоемкий капитальный ремонт. Слой гидроизоляции покрывают особой сеткой, периметр окаймляют полосой из стали, всю конструкцию связывают электрически с нулевой фазой щитка. Но это не значит, что классический дровяной тип печей монтируют проще и легче. Под них обязательно готовят основание (в идеале обособленный фундамент). При выборе выносной топки понадобится создавать огнестойкую стену, да и сооружение хорошего дымохода таит немало тонкостей.
Преимущества электрической модели
К преимуществам выбора электрической сауны следует отнести ряд плюсов:
- Простота устройства.
- Возможность использовать компактные по размерам помещения для обустройства конструкции.
- Значительно суженый круг противопоказаний к использованию.
- Отсутствие насыщенных водяных паров, что снижает риск развития в помещении грибковых колоний.
- Достаточно большой выбор электрический установок, а также возможность смонтировать их самостоятельно.
- Большое количество схем и качественно подготовленных чертежей для работы.
При возникновении трудностей мастер имеет возможность посмотреть обучающие видео-уроки по проведению строительных работ.
Фото tutmateriali.ru.
Рекомендации по установке
При отсутствии знаний об устройстве печей для саун и бань, способах их присоединения и малейшей неуверенности в своей подготовке, лучше обратиться к специалисту. Попытки непрофессионалов самостоятельно монтировать электропечь могут оказаться смертельно опасными, даже спровоцировать пожар. По технологии допустимо подключение только к стационарным электросетям. Если мощность превышает 4500 Вт, придется создавать трехфазную сеть, для менее мощных нагревателей подойдет и однофазная.

Установка выносных аппаратов управления не может даже в малейшей степени отклоняться от требований инструкции, составленной производителем. Заблаговременно готовят подводку к печам медных питающих кабелей строго заданного сечения. Разрывы между деталями нагревателей и поверхностями бань, саун следует выдерживать не менее рекомендованных значений. Под категорический запрет попадает монтаж печек на легковоспламеняющийся материал, правильнее выложить основание керамическими плитками.


От защитного ограждения электрической печи до полок, легко загорающихся материалов нужно выдерживать разрыв не меньше 70 мм. Камни в сауну тщательно промывают проточной водой, берут в необходимом количестве и устанавливают, согласно инструкции. Принципиально недопустимо запускать печь в работу, не уложив внутрь необходимое число подготовленных камней. В помещении, где устанавливают электрическую каменку, нужно использовать светильники в брызгозащитном исполнении. Это обусловлено требованиями безопасности.


Обязательным условием оказывается наладка вентиляции. Вход воздуха нужно организовать примерно на высоте 50 — 100 мм от кромки пола, выходное отверстие делают напротив печи. При монтаже нужно учитывать разницу места. Один подход применяют в процессе установки в парной, другой принцип нужен, если печь ставят в предбаннике.

Выбирать модель надлежит в магазине с хорошей репутацией. Это позволит исключить покупку подделки или товара ненадлежащего качества
Обращайте внимание на составляющие, возможности агрегата, удобство монтажа: это позволит лучше понять работу печи и объем монтажных работ. Чтобы покупка была удачной, можно предварительно пролистать отзывы о понравившейся модели




Так можно будет понять, насколько работа устройства соответствует заявленной производителем
Обратите внимание на небольшой нюанс: качественное изделие не стоит дешево, его невозможно купить на распродаже. Помимо этого продукция уважающих свою репутацию торговых марок отличается наличием документации в виде сертификата качества и соответствия нормам безопасности

Обзор электропечи для бани смотрите в следующем видео.
Мощность – главный критерий выбора печи для бани
Банная печь может быть выдержана в любых габаритных пределах, работать на разном топливе и иметь самый разнообразный дизайн, но к ней в первую очередь предъявляется 2 ключевых требования:
- оптимальная для конкретно взятой парилки мощность;
- установка с соблюдением утвержденных правил и положений.

Характеристики некоторых печей, в том числе мощность

Некоторые модели дровяных печей Ермак
Мощность – первое, на что нужно обращать внимание при выборе банной печи. Приводить какие-то конкретные универсальные цифры бессмысленно – это в принципе невозможно
Главное, чтобы данный показатель был оптимальным для конкретного случая.
Уже на этом этапе многие застройщики допускают большую ошибку, приобретая печной агрегат с большим запасом мощности, рассчитывая, что это позволит сократить временные затраты на прогрев парилки. Да, помещение будет быстрее нагреваться, но далее печь перейдет на минимальный режим работы. Итог один – воздух будет горячим, камни – холодными. Лить воду на недостаточно прогретые камни бессмысленно – пар в таких условиях либо не образуется вообще, либо будет идти клубами, как из чайника. А в бане, как известно, пар должен быть прозрачным и легким, иначе находиться в парилке станет крайне неприятно или попросту невозможно.

Каменка в бане — фото
Ошибкой является и другая крайность – установка маломощного агрегата с целью банального сокращения суммарных затрат на обустройство парилки. Даже если печь с малой мощностью и прогреет помещение до требуемого уровня, ей для этого придется «вкалывать» по максимуму. Как по вашему, что происходит с системой, которая постоянно работает на износ? Правильно, она очень быстро ломается.

Выбирайте каменку достаточной мощности
Так какая же мощность может считаться оптимальной? В инструкции к любой печи фабричного производства указывается 2 интересующих нас на этом этапе параметра:
- мощность, как правило, измеряемая в кВт;
- объем парилки, который сможет качественно обслуживать печь заявленной мощности.

Мощность каменки выбирайте в соответствии с объемом парной
Чтобы избавить себя от сложных длительных расчетов, пойдем самым простым путем: определим объем парилки и, отталкиваясь от него, установим требуемую мощность.
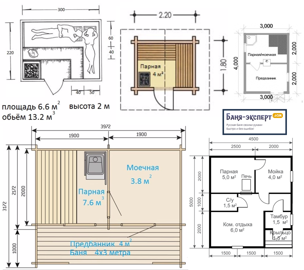
Первый шаг. Рассчитываем объем парного помещения. Для этого нам надо замерить его длину, ширину, а также высоту. После перемножаем полученные числа, находя таким образом показатель объема. Если сохранилась проектная документация, обращаемся к ней и избавляем себя от этого этапа расчета. Допустим, длина нашей парилки равна 2 м, ширина – 1,5 м, а высота – 2,2 м. Объем этого помещения составит 6,6 м3.

Делаем расчет объема парной. Для удобства можно использовать проект вашей бани
Второй шаг. Внимательно осматриваем стены и потолок. Здесь нам надо определить, имеются ли на них неизолированные участки, к примеру, кладка, кафельная облицовка, стеклопакеты и т.п. Считаем площадь каждого такого участка (множим длину и ширину). Суммируем полученные значения. Например, у нас есть окно размерами 60х60 см и кафельная облицовка 100х100 см. Расчет таков:
(0,6х0,6)+(1х1)=1,36 м2.
Полученное число умножаем на коэффициент 1,2 – это дает нам новое значение, равное 1,632. Прибавляем к объему парилки и получаем 8,232.

При расчетах учитываем обшивку, материал дверей, количество окон и другие аспекты
Третий шаг. Если дверь в парилку сделана из стекла, увеличиваем итоговое число из предыдущего шага на 1,5. Результат – 9,732.

При наличии стеклянной двери увеличиваем расчетный коэффициент
Таким образом, печка должна быть рассчитана на обогрев 9,732 м3
Здесь очень важное замечание: в сопутствующих инструкциях к печам указываются рабочие объемы в промежутках, например, 4-9 м3. В нашем примере разумно приобрести печь с некоторым запасом, к примеру, агрегат на 7-12 м3 хорошо подойдет, в то время как ресурса печки на 5-10 м3 будет недостаточно
При определении нужной оптимальной мощности в кВт принято придерживаться закономерности, в соответствии с которой на 1 м3 пространства уходит 1 кВт мощности.

Обращаем внимание на характеристики и выбираем оптимальную модель

Не превышайте рекомендуемого объема камней
Популярные модели
- Политех Cristina Classic. Модель подойдет для парной объемом 10 – 15 куб. метров, ее мощность 10 кВт, масса камней 25 кг, цена составляет 16800 рублей.
- Stream Gross 1 Теплодар. Печка подходит для парилки объемом 8 – 14 куб. метров, ее мощность 10 кВт, вес закладываемых камней 31.7 кг, стоимость – 36600 рублей.
- Narvi NM600. Финское изделие, рекомендуемый объем парной комнаты 6 – 9 куб. метров, мощность печи 6 кВт, масса камней 30 – 40 кг, стоимость – 13200 рублей.
- Helo Himalaya 105DE. Электропечь финско-немецкого производства мощностью 10.5 кВт, способна обогреть парилку объемом 9 – 15 куб. метров, вес закладываемых камней равен 100 кг, стоит она 50500 рублей.
- Harvia Cillindro PC70E Steel. Печь из Финляндии для парных комнат объемом 6 – 10 куб. метров, мощностью 6.9 кВт, вес закладываемых камней 90 кг, стоимость – 17400 рублей.
- Tylo Combi Compact RC3. Шведская печка малой мощности в 3 кВт, подходит для помещений объемом 1.5 – 4.5 куб. метров, вес камней всего 7 кг, цена на нее – 67000 рублей.
- Tylo Expression 10. Более мощная печка электрическая в баню на 10 кВт, для парилок объемом 10 – 18 куб. метров. В нее закладывается 12 кг камней, а цена – 97000 рублей.
- Tylo SD 20. Мощное устройство на 20 кВт, для помещений объемом 22 – 43 куб. метра, вес закладываемых камней равен 32 кг, стоимость – 91000 рублей.
- Термофор Примавольта. Эта банная электропечь российского производства может обогреть помещение до 5 куб. метров, ее максимальная мощность равна 9 кВт. В нее помещается 50 кг камня, стоит она 12000 рублей.
- Душка ЭКМ-18 НМТ. Российская мощная печь на 18 кВт для больших парных помещений 21 – 30 куб. метров. В нее можно заложить 65 кг камня, цена всего 12300 рублей.
Нужна ли дополнительная изоляция парилки, если электрокаменка с парогенератором
Это далеко не праздный вопрос, если вы собираетесь устанавливать такую каменку в квартире. Сауна сама по себе довольно сухая баня, а вот если начать пользоваться парообразователем, то влажность в парилке будет намного выше.
Для того, чтобы из-за пользования баней не возникало проблем с сыростью и тем, что ей обычно сопутствует, например, появление грибка на стенах, нужно заранее позаботиться о качественной гидроизоляции помещения. На нашем сайте найдутся материалы о том, как правильно изолировать помещение от влаги. Другим важным фактором борьбы с влажностью является правильное устройство вентиляции — о нем мы тоже неоднократно писали.
Даже если баня представляет собой отдельное строение во дворе, его необходимо хорошенько просушивать после процедур. Помимо вентиляции и гидроизоляции оставляйте на некоторое время печку включенной, чтобы она напоследок подсушила стены. Во избежание образования конденсата на стенах, сначала прогревайте баню всухую, лишь затем включайте парообразователь.
Способы повышения КПД печи
Повышение эффективности оборудования, экономичный расход топлива возможен при полном сгорании.
Когда дрова находятся сверху колосниковых решеток, первичный воздух проходит снизу сквозь решетку из поддувала. Этот воздух способствует окислению топлива с выделением паров воды, углекислого газа. Как только увеличивается температура дров, начинают выделяться горючие газы. Они догорают в пространстве прямо над топливом и соприкасаются с коксовыми элементами, образуя угарный газ.
Если этого не сделать, будет недожог дров, повышенное оседание сажи сверху камней. Следствие – снижается теплоотдача, повышается риск пожара из-за большого количества сажи в трубах.
В начале и в конце топки в топливник заходит избыток воздуха. Интенсивность горения дров снижается. Тепло уходит через дымоход вместе с дымовыми газами. Для снижения потерь тепла лучше прикрывать задвижки на дымоходе.
К другим способам увеличения КПД стоит отнести:
- Увеличение объема камней.
- Увеличение площади нагреваемой поверхности.
- Уменьшение толщины стенок конструкции (материал – металл).
Необходимо учесть прямую зависимость размеров топки и расхода топлива. Чем больше объем топки, тем больше и расход топлива. При этом растет и теплоотдача печи.
На что обратить внимание при выборе электропечи
При покупке электрокаменки нужно сразу обратить внимание на теплоизоляционные качества. В роли изолятора выступает воздушная прослойка между стальных листов корпуса
ФОТО: prokamin.in.uaНекоторые изделия облицованы кафелем либо натуральным камнем
ФОТО: prokamin.in.uaНекоторые изделия облицованы кафелем либо натуральным камнем
Подобный дизайн повышает уровень безопасности при эксплуатации, защищая от случайных ожогов. Важным моментом является качество механизма управления.
ФОТО: netrauta.fiНедорогие печи оснащены встроенной панелью с ручным управлением
Более дорогое оборудование укомплектовано мобильным пультом.
Основной критерий выбора – показатель напряжения электросетей. Приборы на 380 В отличаются большей мощностью (свыше 4 кВт) и экономичностью, но требуют трёхфазного подключения.
Расчёт необходимой мощности электропечи
Нужная мощность оборудования рассчитывается достаточно просто: на 1 м³ в среднем требуется 1 кВт. Эти показатели справедливы для парных с качественным утеплением стеновых, потолочных и половых перекрытий.
При наличии окна, стеклянной двери даже с хорошей теплоизоляцией на 1 м³ берут коэффициент 1,2-1,5. Для каменок с ленточными нагревателями объём отопления можно увеличить до 1,5 м³ на 1 кВт.
Материалы изготовления и объём камней
В изготовлении корпуса электропечей используют:
- нержавеющую сталь – один из самых популярных материалов, долговечный, имеющий хорошую теплоотдачу;
- сталь, покрытую эмалью – относительно дешёвый вариант, но не особо популярный;
- чугун – надёжный, отлично сохраняющий тепло, но очень тяжёлый материал.
При выборе электрокаменки стоит учесть объём клети и массу необходимых камней. Именно от камней зависит тепло и образование пара.
ФОТО: r-sauna.ruДля компактного помещения парилки на 2-3 человека достаточно небольшого объёма на 20-25 кг
ФОТО: klimatshop.byДля частного дома с большой площадью сауны требуется оборудование повышенной мощности с массой камней от 50 до 70 кг
Рекомендуется использовать специальные камни, испытанные высокой температурой. Применение обычных кусков горной породы снижает эффективность работы печи и может оказаться опасным для здоровья.
Популярные модели печей
Печи для бани Ермак представлены моделями различных годов выпуска. Устаревшие образцы можно приобрести буквально за несколько тысяч рублей, современные аппараты стоят дороже. Самая высокая стоимость – у печей премиального класса. Рассмотрим популярные модели более подробно.
Ермак 12
Печка относится к моделям 2012 года выпуска. При стоимости около 10 тыс. рублей она порадует производительностью и компактностью. Она выполнена в стальном корпусе и оснащена ящиком для сбора золы. Толщина стенок топки составляет 6 мм, что обеспечит печи Ермак продолжительный срок службы. Для контроля пламени дверца отделана стеклом. Обогреваемый объём составляет 14 кубометров при тепловой мощности агрегата 12 кВт. Для его работы потребуется высокий дымоход диаметром 11,5 см.
Особенности печи:
Опциональный тоннель с регулируемой длиной – отличное решение, если пользователи собираются уделить внимание дизайну бани.
Защитный экран-конвектор – Ермак заботится о безопасности любителей бани.
Сетка-каменка – для любителей горячего пара.
Навесной бак для подогрева воды.
Вес печи Ермак составляет 51 кг.
Ермак Уралочка-25
Перед нами универсальная пристенная банная печь. Она предназначена для работы в банях с объёмом парилки до 24 кубометров. Тепловая мощность агрегата составляет 24 кВт. Материал изготовления топки и корпуса – сталь толщиной до 6 мм, дверца отделана стеклом. Печка может работать на двух видах топлива – на дровах и газе. В качестве газового топлива используется сжиженный газ из баллона.
Для любителей горячего пара специалисты Ермака продумали довольно большую каменку. Она вмещает до 60 кг камней – это довольно много, поэтому пар получится густым, насыщенным, как и положено в настоящей русской бане. Вес самой печи составляет 55 кг, поэтому проблем с установкой не возникнет. Диаметр подключаемого дымохода – 11,5 см. Стоимость печки составляет около 17,5 тыс. рублей.
Ермак 30 Сетка Люкс
Эта печка относится к категории люкс, на что указывает её стоимость – от 75 тыс. рублей. Впрочем, это далеко не предел, так как столько стоит модификация со стальной топкой. Модель с чугунной топкой обойдётся почти в 97 тыс. рублей. Дороже всего стоят печи Ермак 30 Сетка Люкс с топкой из нержавеющей стали – около 127 тыс. рублей. Нержавейка может похвастаться самым продолжительным сроком службы.
Печь ориентирована на установку в сухих и влажных банях, она может прогревать как парные, так и смежные помещения. На выбор потребителей представлены модели различных конструкций – например, возможна поставка печки с устройством для образования пара. Также предусмотрена возможность подключения выносных баков с теплообменниками для получения горячей воды. Если хочется печь с баком для воды и солидной каменкой, выбирайте модель Ермак 30 Сетка Люкс.
Ермак 16 (эконом)
Уже из одного названия становится понятно, что данная печь относится к классу эконом. А это значит, что она будет достаточно дешёвой. Но по материалам сборки она не подкачает – всё те же 6 мм стали для топки и 4 мм для стенок корпуса и прочих внутренних узлов. Модель отличается жёсткой конструкцией и вентилируемой каменкой. Стоимость печки Ермак 16 (эконом) составляет около 15 тыс. рублей. Работает она только на дровах, дизайн – простой, как и положено аппаратам экономкласса.
Стеклянной дверцы на борту нет, поэтому в топку придётся заглядывать чаще. Печь Ермак 16 подойдёт для использования в сухих финских саунах, так как каменка у неё очень маленькая – хватит для создания минимального количества пара (например, для проведения ароматерапии с ароматическими эфирными маслами). Объём парной может варьироваться от 8 до 18 кубометров. В любой момент каменку можно поменять на навесной бак для подготовки горячей воды.
Ермак 12 Премиум
Эта печь выпускается в трёх модификациях, отличающихся материалом изготовления топки. Стоимость модели со стальной топкой – от 20,3 тыс. рублей, с чугунной – от 25,8 тыс. рублей, с топкой из нержавеющей стали – от 29,4 тыс. рублей. Особенности печки – отличный дизайн, стеклянная дверца, множество опций:
- Парообразователь.
- Закрытая или открытая каменки.
- Выносные и навесные баки.
Таким образом, печь Ермак 12 Премиум может быть адаптирована под любые потребности пользователей.
В печь влезают поленья до 50 см длиной, для безопасной загрузки дров применяются самоохлаждаемые ручки. Объём парной варьируется от 6 до 14 кубометров. Сама печка отличается предельной компактностью, что делает её пригодной для использования в небольших банях и саунах. При использовании каменки в неё могут поместиться до 30-40 кг камней. Диаметр дымохода составляет 115 мм.
Делаем сами
Возможно ли сделать самостоятельно печи банные электрические? Если вы задаетесь этим вопросом, значит, эта статья для вас. Для начала давайте определимся, какую печь для бани вы желаете у себя сконструировать. Вы уже решили? Замечательно. Посмотрим, как делают народные умельцы печи электрические для бани.
Ну что, будем делать электрические печи для бани сами? Тогда приступим. Сегодня для загородного дома используют электрические печи-каменки. Их применяют, если вы хотите создать внутри парильной сухой воздушный климат. В электрических печах основной элемент – ТЭНы.
Электрическая печь для бани своими руками может быть открытой или закрытой.
- Закрытые используются при вертикальном или горизонтальном расположении нагревателя. Состоят они из токопроводящей шины, тепловые экраны и нагреватели.
- Открытые нагреватели изготовляют из нихромовой проволоки, которая спирально укладывается в канавки в керамической подставке.
Предпочтительней использовать трехфазную сеть (380 В), но если помещение небольшое, то можно использовать и однофазную печь (220 В). Электрическая печь-каменка для бани на 220 В имеет мощность до 3 кВт.

Электрическая схема печи-каменки
Рассмотрим самую простую конструкцию:
- Корпус;
- Нагревательные элементы;
- Каменная засыпка.
Схема сборки печи каменки
Обозначения на рисунке: 1- несгораемое основание (асбестоцементная плита); 2- корпус; 3- ТЭНы; 4- металлический кожух; 5- продувочное отверстие; 6- камни; 7- питающий кабель; 8- шины-перемычки.
Нормы мощности:
- Бревенчатая баня 1,4-1,8 кВт на 1 м3;
- Панельная баня 0,6-0,8 кВт на 1 м3.
Сборка:
- Рассчитываем необходимый размер печи-каменки. Она зависит от размера помещения и необходимой мощности.
- Подбираем количество ТЭНов, исходя из расчетов.
- Закрепляем и с помощью перемычек соединяем, как показано на схеме сверху.
- Вырезаем стальной лист толщиной 2-3 мм, необходимого размера и скрепляем его сваркой или болтами.
- Укладываем плотно камни так, чтобы между ними не было зазора.
- Устанавливаем защитный кожух из нескольких листов металла или кирпича.
- Подсоединяем к сети через терморегулятор или внешний пульт управления.
№1. Критерии выбора печи для бани
Вопросам выбора надежной и долговечной печи необходимо заняться до начала строительства бани, на этапе ее проектирования. Такой подход позволит заранее рассчитать основные параметры оборудования, организовать необходимое фундаментное основание, предусмотреть варианты монтажа печи. При этом основными критериями при выборе являются:
тип и конструктивное исполнение печки, используемый вид топлива;
мощность и производительность, соответствие указанных параметров размерам парилки и бани в целом. Недостаточная мощность приводит к работе оборудования на износ. Слишком высокая производительность означает быстрый нагрев помещения при недостаточной температуре камней, что приводит к дисбалансу в принятии оздоровительных процедур;
принцип работы печи. Классические модели требуют постоянного обслуживания. Печи длительного горения могут давать тепло в течение 4-6 часов, не требуя вашего вмешательства;
наличие в комплекте бака для воды;
наличие функции конвекции;
качество пара. Печи комплектуются каменками открытого или закрытого типа. В первом случае в парилке создается легкий, сухой пар, во втором – влажный.
Установка электропечи в сауне
Конечно, электрокаменка далеко не так требовательна, как дровяная (а тем более кирпичная) печь. Ей не нужны ни фундамент, ни дымоход, многие модели вообще можно закрепить на стене, а некоторые – даже подвесить к потолку! Тем не менее, некоторая подготовка все же необходима. К сведению! Знаете ли вы, что некоторые модели каменок допускают установку их прямо в нижний полок? Это существенно экономит место, а защитой полоку служит специальный фланец из стали или другого материала, который можно приобрести вместе с печью.

Там, где будет стоять каменка, пол лучше выложить плиткой или как-то иначе сделать негорючим (положить лист металла, например). Подвесной конструкции это не нужно.
Минимальные расстояния до основных поверхностей вы найдете в паспорте печи. Обычно они невелики, но соблюдать их следует в точности или в сторону увеличения.
Но если по установке самой печи вопросов практически не возникает, то о ее подключении этого не скажешь.





































