Пошаговая инструкция по созданию псевдокамина из гипсокартона
Реалистичный декоративный камин из гипсокартона, сделанный своими руками, отличается от настоящего лишь отсутствием живого огня. Пошагово, его начинают строить с создания чертежа, подготовки пространства под установку.
Какие инструменты, материалы нужны
Для работы понадобится лист гипсокартона достаточного размера, бруски или перфорированные профили, уголки для сборки каркаса, шуруповерт, перфоратор, достаточное количество саморезов, строительный уровень, металлическая рулетка, карандаш, линейка, угольник, электролобзик или нож для нарезки материала. Для черновой и финишной отделки пригодится наждачная бумага, шпаклевка, краска или бумага для оклеивания.
Искусственный камин чаще всего изготавливают из гипсокартона. Этот материал стоит недорого и его можно приобрести в любом магазине стройматериалов.
Создаем схему, макет
Схема предварительно рисуется на бумаге, из нее же создается макет. После детали, которыми планируется обшивать изделие, размечаются на гипсокартоне в соответствующем масштабе.
Подготовительные работы
На подготовительном этапе выбирается место установки конструкции, очищается от старых покрытий, выравнивается. Участок для монтажа тяжелого изделия дополнительно укрепляется.
Собираем, монтируем каркас
Каркас собирается из алюминиевых профилей или брусков. Вначале монтируются вертикальные стойки, после – верхние планки, дополнительные перемычки. Строгую перпендикулярность деталей проверяют при помощи уровня, угольника.
Обшивка камина-муляжа
Перед началом обшивки вырезанные из гипсокартона детали примеряются к возведенному каркасу, при необходимости – слегка корректируются. После все элементы монтируются на предназначенные им места с помощью саморезов. Места стыков шпаклюются, шлифуются.
Обшивочные фрагменты фиксируем саморезами с крепежным шагом в 10-15 см.
Чем отделать искусственный камин
Отделывать фальш-камин допустимо по-разному. Подойдет окрашивание в белый колер, оклеивание керамическими или гипсовыми плиточками, мозаикой, цветным стеклом, самоклеящейся пленкой, обоями. Можно также расписать его вручную причудливыми узорами. Пластиковая лепнина, в виде молдингов, карнизов, полуколонн или розеток, уголков, также придется в тему.
Как можно украсить фальш-камин
Весьма необычно смотрится в каминном сооружении поддельное пламя. Его создают при помощи оранжевых и красных платочков, закрепленных над небольшим работающим вентилятором (подойдет даже кулер от компьютера). Небольшие настоящие свечи внутри портала, особенно вставленные в выемки на деревяшках-дровах, также станут подходящей альтернативой полноценному огню. При помощи светодиодов теплых оттенков, размещенных в топке псевдокамина, а также стекла, с нарисованным на нем огнем, создается красивая иллюзия «живого» огня.
Оформить гипсокартон можно буквально чему угодно, начиная с обыкновенной покраски и заканчивая приклеиванием плитки.
Внутрь портала, нее имеющего нагревательных элементов, помещают растения. Это теневыносливые живые горшечные цветы, свежесрезанные букеты в вазочках, искусственные лианы. Тряпичные розочки, пионы, маки, закрепленные на ткани, натянутой внутри, также подойдут. Любители рукоделия даже вышивают весьма реалистичный огонь цветными нитками.
Угловой портал для камина
Это сооружение, незаменимо в комнате с небольшой площадью. Угловой портал для камина своими руками из гипсокартона занимает немного места, кроме того, он занимает минимум полезного пространства, занимая мертвую зону в помещении. Расположить его можно в любом углу. Сооружают конструкцию по эскизу, подготовленному заранее, при этом стоит строго следовать инструкции производителя электрокамина, в которой написаны параметры вентиляционного отверстия.
Угловой портал из гипсокартона
Работа проводится по следующему алгоритму:
- Разметить профили по эскизу и нарезать их нужного размера, для этого можно использовать ножовку по металлу или ножницы.
- Все элементы конструкции нужно соединить между собой маленькими саморезами. Сделать это несложно, вставить стеновой профиль в направляющий и закрутить крепеж шуруповертом.
- Если вы выбрали в качестве отделки тяжелый материал, то всю конструкцию следует закрепить к стене или сделать для него специальное основание, которое должно быть больше самой конструкции на 30 см. Такой подход к сооружению позволяет соорудить в основании имитацию поленницу из дров.
- Во время сборки каркаса стоит постоянно проверять параметры, для этого прикладывают электрокамин в нишу. Это поможет вам не ошибиться и правильно сделать электроразводку для подключения устройства.
- Как только каркас полностью готов, следует подвести к нему электричество так, чтобы вам было удобно включать камин.
- Гипсокартон стоит сразу раскроить по эскизу, так работать будет удобнее.
- Обшивается каркас гипсокартоном с применением черных саморезов и шуруповерта. Чтобы отделать конструкцию было проще, шляпки шурупов немного утапливают в материал, но следите, чтобы крепеж не прорвал слой картона.
- Швы ГКЛ расшивают и заделывают, обязательно укрепив их армирующей лентой. На углы конструкции закрепляют перфорированный уголок на штукатурку.
- Поверхность фальшь-камина нужно зашпаклевать базовым слоем шпаклевки, оставить его просыхать.
- Вторым слоем будет идти финишный слой и после просыхания хорошо зашкуривают.
Облицовка камина из дерева
Проводить облицовочные работы для деревянного камина можно двумя способами – при помощи клея или используя саморезы. Конструкция, сделанная при помощи саморезов, отличается особой надежностью. Но крепеж может выбиваться на фоне общего дизайна деревянного камина и быть слишком заметным.
Клей будет удерживать материал на каркасе не так надежно, но будет совершенно не заметен на камине. Для того чтобы клей полностью высох, необходимо будет выждать три часа. Еще одним необычным способ крепежа является использование декоративных элементов, которые смогут скрепить несколько деталей.
Эффект состаренной древесины придаст камину благородный вид
Есть много способов, как можно искусно украсить деревянный портал для камина. Готовую конструкцию следует покрыть защитным слоем лака. Дерево само по себе является красивым материалом, но иногда его нужно видоизменить, чтобы получилась единая композиция с общим стилем комнаты.
Древесину можно покрыть жаропрочной краской. Чтобы камин из дерева выглядел более древним, можно состарить поверхность. Для этого следует аккуратно снять верхний слой краски при помощи наждачной бумаги. Еще один вариант придания эффекта старения камину – это использование нескольких слоев краски. Следует нанести краску одного цвета, дождаться, когда она полностью высохнет. После наносится другой цвет, который сочетается с первым. При помощи наждачной бумаги частично снимается верхний слой краски.
Кроме использования краски, можно покрыть деревянный камин оттеночным лаком. Он лишь придаст более светлый или темный тон дереву. Для того чтобы сделать камин роскошным, можно использовать в некоторых местах конструкции золотое или перламутровое напыление.
Также можно использовать для украшения деревянного камина художественную роспись. Подойдут изображения цветов, силуэты животных, изображения абстрактных объектов. На дереве очень эффектно смотрится искусная резьба. Она станет отличным дополнением для оформления камина. Можно использовать накладные элементы в виде фигурных деталей. Они могут быть выполнены из древесины другого сорта. Также подойдут вставки из натурального или искусственного камня, зеркал и цветного стекла.
Камин из дерева требует постоянного ухода. Раз в несколько лет его необходимо обрабатывать специальным составом. Но, несмотря на этот недостаток, дерево всегда смотрится благородно и подходит практически к любому интерьеру. Деревянный камин легко сделать самостоятельно и установить в помещении.
Делаем портал для электрокамина
Электрокамин нужно устанавливать в подготовленную нишу, которую делают из гипсокартонных листов. Пошаговая инструкция для монтажа электроприбора:
- Стену, на которую устанавливается электрокамин, нужно сделать термостойкой при помощи жаропрочных материалов.
- Прикрепите к полу подиум для отопительного прибора.
- Установите каркас из металлического профиля. Основание портала должно быть прочным, чтоб выдержать повышенную нагрузку от электроприбора. Поэтому стоечные профили прикрепите с шагом 200 мм.
Угловой камин из гипсокартона – чертеж
- Проведите электропроводку внутрь портала, чтоб подключить электрокамин.
- На стенке портала сделайте несколько отверстий, которые будут исполнять роль вытяжных ходов.
- Произведите обшивку портала гипсокартоном, при этом укрепите его при помощи оцинкованных уголков. Готовую конструкцию зашпаклюйте, после чего можно производить облицовку любыми материалами.
- В готовую нишу установите электрокамин.
Фальшкамин достаточно просто сделать своими руками, используя при этом доступные материалы.
Главный элемент
Камин имеет несколько функциональных составляющих, правильность сборки которых определяет общий успех дела. Камин состоит из следующих элементов:
- основание;
- портал;
- верхняя полка;
- прибор, который дает возможность имитировать огонь настоящего камина.
Портал для камина, сделанного из гипсокартона, является главной составляющей. Он представляет собой внешнее оформление конструкции. Также, под порталом подразумевается «парадный вход» камина. Т.е. портал является внешней частью конструкции, имеющий вид топочного углубления.
Портал камина
Для декоративного оформления этой части конструкции можно использовать самые разнообразные отделочные материалы, особенно если сам камин обшивался гипсокартонными листами. Гипсокартон является отличной основой для любого типа отделки. Именно благодаря данному качеству фальш-камины внешне очень схожи с настоящими и сделать их можно своими руками.
Как сделать портал для камина своими руками

Выбрать каминный портал — довольно непростая задача. Ведь камин давно уже не просто отопительный прибор, а «изюминка» дома, главный элемент интерьера, место, у которого хочется отдыхать, слушая приятное потрескивание поленьев.
Просиживая вечера напролет в Google и Yandex, будущий счастливый обладатель камина находит в интернете тысячи каминных порталов, похожих друг на друга как две капли воды.
К тому же, заоблачные цены на самые интересные модели каминных порталов сравнимы разве что с ценами на строительство небольшого загородного домика.
Совет
Возникает справедливый вопрос — можно ли самому построить каминный портал? Да, причем оригинальный, подходящий под определение «классический камин», обязательно с мраморными деталями. При этом по бюджету он будет в несколько раз дешевле любого серийного портала.
Топку камина мы используем стандартную, чугунную, довольно мощную, норвежского производства. Хотя запросто можно построить открытую топку из огнеупорного кирпича.
Не стоит забывать, что у камина общий вес в конечном результате достигнет примерно 350 кг, следовательно, нужен фундамент. Топку ставим на конструкцию, которая сделана из вспененного бетона толщиной 150 мм. Из того же материала вырезаем полуколлоны (как на фото).
Пеноблок отлично режется обыкновенной ножовкой, хорошо обрабатывается топором и наждачной бумагой. Склеиваем все это с помощью любого термостойкого плиточного клея, предварительно обработав все детали грунтовкой. Над топкой ставится бетонная перемычка толщиной 50 мм.
В переходник топки вставляем трубу из огнеупорной стали диаметром 200 мм, и с помощью колена соединяем ее с дымоходом. Все соединения тщательным образом обрабатываем огнеупорным герметиком. По истечении суток все соединения следует дополнительно завернуть в огнеупорный алюминиевый скотч.
Из того же блока толщиной 50 мм сооружаем трехъярусную каминную полку, которая после обработки наждачной бумагой должна выглядеть как на фотографии. Затем все поверхности блоков снова грунтуем.
Дождавшись высыхания грунтовки, наносим слой стартовой шпаклевки, клеим армовочную стекловолоконную сетку и покрываем финишной шпаклевкой. Когда финишное покрытие высохнет, нужно его отполировать мелкозернистой наждачной бумагой.
Обратите внимание
Наш каминный портал практически готов, осталось добавить мраморные детали. В проекте предусмотрены следующие детали из мрамора: нижняя каминная полка толщиной 30 мм и три полоски шириной 50 мм и толщиной 20 мм — по бокам топки и над топкой.
Чтобы получить эти детали, нужно вырезать их из плотного картона, отвезти в ближайшую к вам фирму, которая занимается реализацией мрамора, и сделать заказ. Можно и это сделать самому, но для резки и полировки мрамора, и тем более для нарезания фигурных фасок, нужно довольно дорогостоящее оборудование, поэтому этот этап можно перепоручить специалистам.
Хотя мы и ведем разговор о порталах, хочу отклониться от темы и уделить немного внимания конструкции короба. Некоторая часть тепла из нашей топки будет излучаться прямо через фасад, но большая часть — через верхнюю стенку топки.
Чтобы «завести» это тепло обратно в комнату, мы делаем короб. Каркас короба сооружается из сдвоенных профилей типа UD, внутрь которых вставляется экранированная фольгой минвата. По обоим бокам короба проделываем отверстия, которые позже закроем декоративными решетками.
Отверстия внизу и вверху обеспечат постоянную циркуляцию воздуха внутри короба и отведут тепло от топки и трубы в комнату.
Осталось совсем немного — отделка камина. Для отделки данного камина мы использовали декоративную венецианскую штукатурку.
Это очень качественный отделочный материал, идеально имитирующий полированный мрамор, состоящий из белой мраморной муки и смеси синтетических смол.
Важно
Наносить венецианскую штукатурку следует специальным венецианским шпателем, только тогда можно добиться абсолютной схожести с мрамором. Глянцевые сорта венецианки дополнительно покрывают специальным воском и полируют.
К какому стилю отнести данный каминный портал? Даже не знаю… Есть в нем что-то классическое (колонны, симметрия), есть что-то от модерна (овальная форма короба), но главное, есть индивидуальность. Этот камин существует в единственном экземпляре. И я уверен, что и вы сможете создать свой шедевр, единственный и неповторимый.
Альтернативный вариант – картонный фальш-камин своими руками
Вы удивитесь, но весьма привлекательный фальш-камин можно изготовить из картонной коробки из-под крупной бытовой техники (например, телевизора, как на примерах). Кроме того, для работы вам понадобятся различные декоративные элементы и большое количество клея. Сами декоративные элементы, к слову, можно сделать самому, используя для этого пенопласт или особые выпуклые обои. Для имитации колонны или лепнины можете приобрести специальные декоративные элементы из пенополиуретана, которые продаются во многих специализированных торговых точках.
Для начала конструкции необходимо придать нужную форму, после чего попросту покрасить, дабы в итоге получились примерно такие камины. Что касается дальнейших действий, то здесь можете воспользоваться воображением. Хотя камины можно оставить, как есть – в таком виде они также будут выглядеть довольно привлекательно.
Или вот еще необычные варианты.
Что же касается объема, то он может быть и меньшим – коробку от техники в таком случае необходимо раскроить следующим образом.
Дальнейшие действия предельно просты – изделие нужно собрать наподобие конструктора, а затем красиво оформить.
Можете прибегнуть к оформлению, как на изображениях ниже – выглядит просто, но оригинально.
Есть и другой вариант – собрать фальш-камин из отдельных упаковочных коробок и картонных листов. При этом все стыки нужно проклеить скотчем, соединения заделать им же, а для изготовления каминной полки использовать листы двойного картона.
А на изображении ниже показан процесс изготовления простого новогоднего фальш-камина, сделанного из той же картонной коробки.
Безусловно, картон вряд ли можно отнести к прочным материалам, однако при наличии коробки достаточных размеров вы вполне можете изготовить угловую конструкцию – такая будет более прочной, да и места займет немного.
Можно нарисовать «кирпичную» плитку либо, как вариант, изготовить трафареты, как на иллюстрации ниже. Лучший для этого материал – это пенопласт, который нужно лишь покрасить и намазать клеящим составом.
Приложив некоторые усилия при работе над декором, можно добиться вот такого внешнего вида конструкции. Не стоит удивляться, эти камины на самом деле изготовлены из обычного картона!
А если не будете лениться, то можно получить такие восхитительные очаги.
Словом, старайтесь, экспериментируйте – в таком случае время будет потрачено не зря! Пусть такой очаг и не будет настоящим, зато он создаст уют, а он, в свою очередь, будет реальным.
Портал для камина из гипсокартона своими руками

Если вы приняли решение самостоятельно соорудить портал, то необходимо очень внимательно отнестись к выбору материала, из которого вы планируете его конструировать. Его выбор зависит от вида камина, для которого он предназначен. Итак, запомните:
- Для электрических и декоративных каминов при постройке портала можно использовать гипсокартон, пластик, полиуретан, дерево;
- Для дровяных каминов используется мрамор, песчаник, гранит, кирпич, натуральный и искусственный камень. Также можно использовать гипсокартон и дерево, но необходимо проложить дополнительную термозащиту.

Наиболее простым и дешёвым вариантом для изготовления портала для камина своими руками является гипсокартон. Однако при его конструировании нужно учитывать следующий нюанс – данное сооружение создаётся на этапе планировки помещения, дальнейшие передвижения и корректировки не допускаются. Поэтому необходимо тщательное согласование размеров и других необходимых атрибутов, например наличие вентиляционных отверстий и места под электропроводку. Преимуществом гипсокартона является его пластичность, с его помощью каминному порталу можно придать любую форму.
Приведённый выше план пошаговой установки портала из гипсокартона для электрокамина подойдёт и для изготовления фальш-камина, однако для него потребуется дополнительное декорирование в виде зеркала на заднюю стенку, имитации огня, красиво уложенных в очаге дров и т.д. Ваша фантазия будет лучшим помощником на данном этапе отделки.

По стилю порталы различаются следующим образом:
- В классическом стиле. Наиболее распространённый вид порталов. Их отличительная черта – строгость дизайна, чёткость линий. Как правило, они не требуют каких-либо дополнительных украшений. Покрасьте портал белой краской, можно добавить немного позолоты;
- В стиле кантри. Если вы хотите выбрать такой дизайн для своего портала из гипсокартона, декорируйте его плиткой под натуральный камень или кирпич. В качестве украшений поставьте на каминную полку бронзовые безделушки;
- В стиле хай-тек. Вообще, такие порталы изготавливаются из стали и стекла, но если вы настроены на то, чтобы выполнить ваш портал именно в таком стиле, обклейте его самоклеящейся глянцевой плёнкой чёрного цвета, добавьте зеркальные либо стеклянные вставки, положите стекло на каминную полку. Сверху можно повесить телевизор;
- В стиле модерн. Отличительной особенностью этого вида порталов является смешение классики и современных изысканий. Такие порталы подойдут практически для любого интерьера.
Свежее в разделе «Камины»
Камин-печь Енисей Камин в интерьере квартиры Камин для дачи Печь-камин для загородного дома Декоративный камин из гипсокартона своими руками Чугунная печь-камин Угловой камин своими руками Подвесной камин Печь-камин с водяным контуром отопления Камин-печь с теплообменником Печь-камин своими руками Кладка печей-каминов
Все права защищены, 14+
Технология изготовления
Камин до XXI века – предмет роскоши и достатка, но на данный момент люди возводят эту конструкцию в силу минимальных затрат на стройматериалы.
Технология изготовления конструкции из гипсокартона построена на нескольких этапах проектировки:
Подготовка проекта
На подготовку проекта не уходит много времени. Здесь делают разметку для портала на том месте, где хотят встроить конструкцию. Также его делают выходящим за рамки стены, тогда листов гипсокартона понадобится больше. Далее разрабатывают конструкцию, декорации, определяют основную функцию конструкции. Он может быть просто декоративным предметом или выполнять функцию полки.
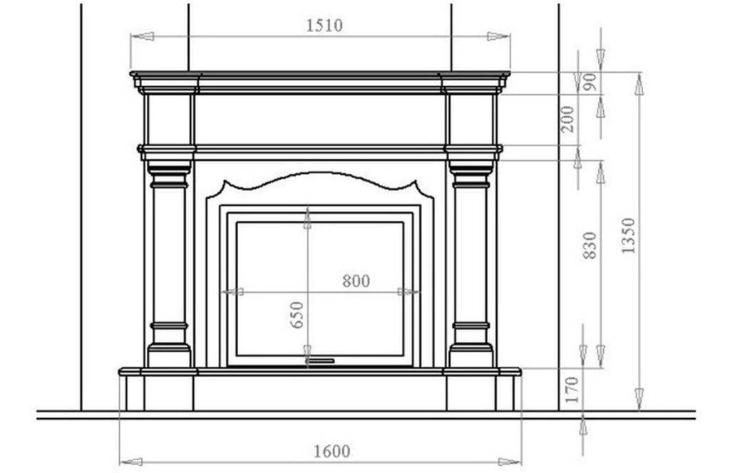
Размеры П-образного камина
Размеры портала для камина
Подбирают сухое место куда влага не поступает, и конденсат собираться не будет. Располагают – в гостиной, спальне, личном кабинете. В небольшой комнате делают угловую установку. В итоге проектирую чертеж.
При монтаже необходимо иметь визуальное представление деталей камина, и его каркаса.
Материалы и инструменты
На данном этапе подбирают необходимый материал и инструменты. Тонкие и средней толщины гипсокартон лучше не приобретать.
Для долгого срока служения подбирают качественный материал и набор инструментов:
- профиль для гипсокартона, направляющие и стоечные;
- листы гипсокартона, жаропрочные или водоотталкивающие, толщина листа 12-14 мм;
- саморезы, дюбель-гвозди;
- дрель, грунтовка;
- уровень, шпаклевка;
- изоляторы тепла;
- эмульсия или матовая краска;
- декорации для готового портала.
Для декорирования использую имитационный камень, дерево, плитку, или оставляют камин без декора.
Необходимые материалы и инструменты
Сборка каркаса
На места расположения конструкции отмечают места крепления каркасных профилей. Каркас крепят дюбелями, это обеспечивает плотное прилегание конструкции к стене. Далее крепят направляющие профиля. Стоечный профиль вставляют в направляющий, и также закрепляют саморезами.
Для увеличения прочности используют ребра жесткости. Их крепят к горизонтальным и вертикальным стоечным профилям, однако конструкция становится громоздкой. Поэтому мастера рекомендуют компенсировать этот недостаток толщиной листов гипсокартона, и близким расположением отверстий для саморезов.
Сборка каркаса
Сначала делают основной каркас, затем для портала. Конструкцию укрепляют перемычками. На перемычки в портале распределяется вес декорированных предметов. Для формирования арки надрезают профиль портала.
Обшивка
На лицевую часть не рекомендуется использовать цельный лист гипсового картона. Листы режут на равномерные куски, затем крепят к каркасу саморезами 25 мм.
Соблюдают крепежный шаг в 15 см.
Внутри каркаса на месте портала крепят изоляторы тепла. Это предохранит материал от деформации. Швы шпаклюют, грунтовкой покрывают готовую обшивку, и красят эмульсионной или водоотталкивающей краской матового цвета.
Камин обшитый гипсокартоном
Декорирование
Декорируют конструкцию плиткой, имитационным камнем. Крашеный – в белом цвете не нуждается в дополнительных декорациях. Иногда обклеивают обоями с имитацией под кирпич или дерево.
Готовый декоративный камин из гипсокартона
Структура проведения работ

Некоторые магазины предоставляют готовые макеты порталов, не требующие длительной установки и проведения ремонтных работ. Однако подобные решения достаточно однобоки и не дают развернуться фантазии, способствуя получению типового очага, который вряд ли сможет порадовать глаз. Альтернативой покупке угловатых и несильно красивых сборных конструкций служит постройка полноценного портала самостоятельно. Однако для этого необходимо иметь не только некоторые практические навыки работы с материалами, но и иметь пространственное мышление.
Структура работ по созданию подобного объекта выглядит следующим образом:
- подготовительные работы;
- сбор инструмента;
- возведение каркаса;
- облицовка портала;
- декорирование.
Приведенные выше этапы являются неотъемлемой частью возведения портала своими руками из гипсокартона. На сегодняшний день подобное решение является одним из лучших, поскольку не подразумевает больших материальных затрат и не потребует много времени.
Ключевая особенность строительных работ заключается с подготовки, направленной на создание оптимальных условий для возведения объекта. В случае с нашей постройкой она базируется на следующем:
- определение места для установки камина;
- расчистка территории, подготовка поверхностей;
- создание принципиального плана постройки.

Базируясь на этих принципах, построить полноценный портал под электрокамин не составит большого труда. В самом начале следует определиться с местом расположения каминной системы. Выбрать ее не так сложно, как при сооружении полноценного каменного камина, когда необходимо проводить усиление фундамента и подготавливать огнестойкое основание, но все же свои нюансы в этом вопросе тоже существуют. Лучшим местом для установки электрокамина служит какая-либо стена в глубине дома или даже угол. В таком случае внешний вид очага не будет забиваться дневным светом, а весь интерьер станет более уютным и комфортным.
Такое решение создаст оптимальные предпосылки для возведения системы, кроме того, даст возможность провести строительные работы более быстро и точно.

Чертежи и их создание являются неотъемлемой частью подготовки. Именно создание плана дает понять, каким будет готовый объект, его геометрические пропорции и соотношения сторон, а также определить его форму и предпочтения по финишной отделке.
Виды каминов из гипсокартона
1. Условные. Обязательный элемент такого украшения — портал, выступающий из стены на пару сантиметров. На полку, имитирующую топочную камеру, ставят электрокамин или горящие свечи, мерцающие светильники. Если изделие будет стоять в детской, то в топке делают несколько полок для книг, канцелярских принадлежностей или игрушек.
2. Достоверные. По размеру и внешнему виду они полностью соответствуют настоящим, отличаются лишь отсутствием дымохода. В топку устанавливают горелку, работающую на биоэтаноле. Этот тип горючего не выделяет копоти, дыма, не образует золы и сажи, имеет тепловой коэффициент больше, чем у дров. Но так как материалы, из которых изготавливают декоративные камины, плохо сохраняют тепло, этот элемент обстановки все же не может являться полноценным источником обогрева. Такие конструкции непригодны для детской из-за наличия открытого пламени, но уместны в спальне, гостиной или столовой.
3. Символические. Из любых доступных материалов на стене создают плоское изображение — соответствие размера и внешнего оформления настоящей конструкции необязательно. Для этой цели подойдут и обрезки гипсокартонных листов, оставшиеся после ремонта. Их несложно приклеить прямо к стене, а затем нанести изображение портала и очага.
Разновидности условного и достоверного вариантов — угловой камин или островной (установленный отдельно, не у стены). Второй ставят в очень просторных комнатах на небольшом возвышении. Угловой подходит для тесного помещения, не занимает много места, выглядит не громоздко.
Дизайн
Идеи для камина:
- Облицовывают гипсокартон керамической плиткой, искусственным камнем (в том числе гибким), штукатуркой обычной или декоративной, красят. В домашних условиях несложно своими руками изготовить гипсовый или бетонный отделочный камень. Для этого понадобятся формы и специальная смесь (например, «Умный гипс»).
- Сверху конструкцию часто украшают имитацией вытяжки. Хорошо смотрится с деревянным обрамлением.
- Вариант дизайна — поднять топочную камеру, особенно уместно такое решение в комнате с высоким потолком. В этом случае камин ставят на подножие (ступень).
- Полки, вмонтированные в топку или закрепленные на стенках конструкции, повысят функциональность. На них удобно расположить декоративные детали, книги, посуду.
- В нижней части иногда размещают нишу. После установки в нее кладут декоративные искусственные или настоящие поленья. Натуральные обрабатывают антисептиком, покрывают лаком или морилкой.
- Угловой вариант может иметь пяти- или трехугольную форму.
Чаще всего его располагают у капитальной стены. Перед ним должно быть свободное пространство для обустройства зоны отдыха. Нельзя устанавливать у двери, рядом с батареями отопления или в труднодоступных местах.
Преимущества фальшкамина
Каркас фальш-камина из гипсокартона
Декоративный камин, который можно легко соорудить собственноручно, имеет много преимуществ:
данный прибор можно установить в городской квартире, при этом не нужно брать никаких разрешений или оформлять дополнительную документацию;
- камин из гипсокартона может быть разнообразной формы и конфигурации, что позволит вписать его в любой интерьер;
- для возведения фальшкамина нужно использовать простые материалы, которые можно купить в любом строительном магазине;
- высокая безопасность данной конструкции, поскольку отсутствует источник открытого пламени;
- стоимость установки данного декоративного элемента небольшая;
- такой агрегат может исполнять роль полки или подставки;
- для имитации пламени в подготовленную нишу, которая исполняет роль корпуса печи, можно установить электрокамин.
Если корпус агрегата не будет привинчен к стене, его можно легко перемещать по квартире. В этом случае декоративный камин можно использовать только по необходимости, при этом устанавливая в нужном месте.
Приступаем к сборке
После того, как был нарисован чертеж, нужно подобрать место размещения камина и начать его сборку.
Когда место выбрано, начинаем делать металлический каркас, одновременно выводя короб. При этом монтаж портала является частью короба. Поэтому они возводятся одновременно.
Каркас собирается по следующей схеме:
- делаем сначала обрешетку пола;
- сделать нужно основу камина. Для этого сначала крепим стартовый профиль, а потом вставляем в него направляющие профиля;
- закреплять профили на стене и полу следует с помощью дюбелей и шурупов, а между собой — саморезами по металлу;
- когда короб основания сделан, переходим на каркас портала;
- для этого нужно сделать металлический каркас с нишей внутри. Ниша монтируется по стандартной технологии. Эта ниша иногда еще называется трубой портала;
Каркас портала
- для придания всей конструкции жесткости между направляющими профилями крепим обрезанные стоечные профиля (перемычки);
- сделать перемычки своими руками можно легко с помощью ножниц по металлу;
- их следует крепить не только не только по периметру портала, но и в верхней полке.
В результате собранный короб будет иметь достаточную жесткость и сможет выдержать вес, который вы поставите на верхнюю полку.
Финальный штрих: декор камина
Декоративный портал на стене или в углу комнаты можно дополнить пламенем свечей, установив в топке биокамин с настоящими язычками пламени или поставив там обогреватель, стилизованный под горящие поленья. В любом случае искусственный очаг будет выглядеть не хуже, чем самый настоящий, а выполнять функции декоративного элемента в интерьере сможет даже лучше. Ведь для разжигания огня не потребуется ни дров, ни угля, которые могут испачкать ковер или пол.

Недостаточно только построить камин своими руками из гипсокартона. Необходимо сделать и декорирование готовой конструкции. Несколько фото помогут выбрать нужный стиль оформления и сделать надежный каркас, подходящий для конкретного интерьера.
Достаточная прочность ГКЛ позволяет отделать очаг даже такими материалами, как имитация дикого камня и кафельная плитка. Совет: проще всего купить готовую лепнину из пенопласта.
Камины для интерьера в деревенском стиле (фото на рис. 3) можно оклеить легкой плиткой, воспроизводящей поверхность скальных пород. Перед отделкой поверхность ГКЛ покрыть шпатлевкой для лучшей адгезии плиточного клея. Монтаж плитки производят по общим правилам:
- наклеить элементы;
- просушить;
- выполнить затирку и расшивку швов (по необходимости).
Таким же образом крепят кафель. Для интерьеров в мещанском стиле в торговых организациях можно найти плитку, имитирующую изразец. Такие камины можно дополнять лепниной, окрашенной в оттенки красок на кафеле.
Изделия для интерьера: полиуретановый молдинг
Самый большой простор для фантазии предоставляет классический стиль. Пенополиуретановые и пластиковые молдинги, плинтуса, лепнина позволяют создавать шедевры в стиле рококо и барокко, как на фото (рис. 4), превращая свою квартиру в дворцовые апартаменты. К такому оформлению каминов следует подходить очень ответственно, стараясь сочетать внешний вид очага и прочей обстановки.
В зависимости от того, планируется камин использовать как элемент декора, или хочется получать от него долю тепла в зимние вечера решать только вам, однако можно остановить свой выбор на имитации пламени разных видов. Изящно выглядит портал, в топке где установлен биокамин. Такое оформление в 100% случае будет соответствовать правилам пожарной безопасности.
Как зажечь в камине огонь?
Вы наверное подумаете что растопить камин самая легкая задача — закинул пару веток, бумаги, поднес спичку и вот она красота. На деле всё выходит по другому. Первая протопка может о много рассказать.
После ручной постройки если вдруг вы вдруг засомневались в эффективности своего чудо камина — вызовите специалиста на объект для оценки и первичной протопки
В противном случает возможен сильный риск воспламенения при неправильной установке как в американском фильме 2016 года «Манчестер у моря», где главный герой по неосторожности спалил весь дом, подкинув пару лишних дровишек. Существуют и другие подводные камни, что могут всплыть спустя небольшое время. Кадр из фильма Manchester by the Sea (Манчестер у моря) горящий дом
Кадр из фильма Manchester by the Sea (Манчестер у моря) горящий дом
Не нужно торопить события когда дело доходит до финишной прямой. Ваши старания могут оказаться неэффективны, поэтому заранее ознакомьтесь одной из наших статей как правильно топить камин.
В заключении ознакомьтесь с забавным видео как далматинец и конь проводят весело время на фоне чарующих языков пламени — релакс обеспечен.
https://youtube.com/watch?v=UTxsZn7ZVkg
























































